我們堅定不移地致力於為客戶提供最先進的創新產品,Bepto 是您前進路上的堅定盟友。.
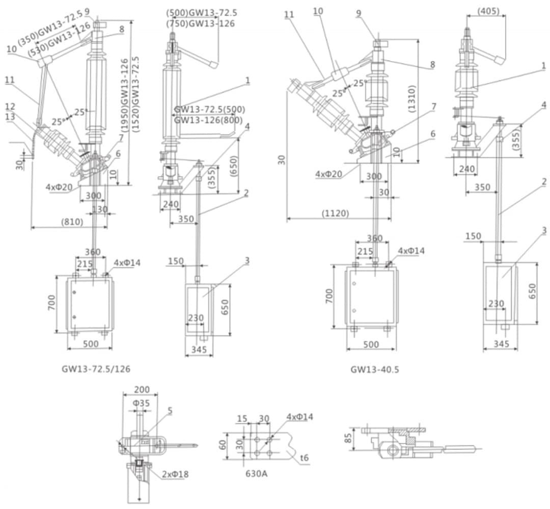
GW13 室外中性點斷開開關 40.5-126kV 630A:50°支柱絕緣體相交角,25°傾斜支架,底座安裝,軸接操作機構,CS17G 手動或 CJ6 電動機構,支架支柱絕緣體接點接線板組成,中性點應用。.
先進的 GW13 中性斷開開關系列:戶外中性點斷路開關,額定電壓為 40.5kV/72.5kV/126kV,電流為 630A,適用於中性點隔離應用,隔離開關由支架、底座、支柱絕緣體、觸頭和接線板組成,支柱絕緣體和導電部分安裝在底座上,兩個支柱絕緣體的交角為 50°,底座固定在支架上,傾斜 25°,提供獨特的安裝幾何形狀,支架配備與操作機構連接的軸,可以配備 CS17G 手動操作機構或電動機構,如 CJ6。.
獨特的傾斜托架與彈性機構配置GW13-40.5/72.5/126 系列採用創新的 50° 支柱絕緣體交叉角設計,搭配 25° 傾斜支架安裝,確保中性點應用的最佳電氣間隙和機械穩定性,支架與軸連接,可順暢操作 CS17G 手動操作機構進行手動操作,或 CJ6 電動機構進行遠端自動操作,提供 40.5kV/72.5kV/126kV 電壓選擇,滿足各種中性點斷開要求。5kV/72.5kV/126kV,可滿足各種中性點斷開要求,訂購時需指定型號、環境條件(環境溫度、海拔高度、污染程度)、操作機構型號和備件要求,為 40.5-126kV 電力系統中性點隔離提供可靠的戶外中性點斷開開關解決方案。.
| GW13 室外中性斷開開關規格 | 參數 | 單位 |
|---|---|---|
| 品牌 | Bepto 絕緣系統 | - |
| 型號 | GW13-40.5 / GW13-72.5 / GW13-126 | - |
| 類別 | 開關裝置及中性斷開開關 | - |
| 產品類型 | 戶外中性點斷開開關 (40.5-126kV 630A) 配備 50° 支柱絕緣體交叉點、25° 傾斜支架、CS17G 手動或 CJ6 電動機構,適用於中性點應用 | - |
| 核心技術 | 中性點絕緣應用 + 支架底座支柱絕緣體接觸配線板組成 + 底座上安裝支柱絕緣體及導電件 + 兩支柱絕緣體相交角度為 50° + 底座固定於 25° 傾斜支架上 + 獨特的安裝幾何形狀 + 最佳電氣間隙 + 機械穩定性 + 支架配備與操作機構連接的軸 + CS17G 手動操作機構 + CJ6 電動機構 + 遠端自動操作能力 + 電壓選項 40.5-126kV + 靈活的機構配置 + 環境條件規格要求 | - |
| 額定電壓選項 | 40.5kV / 72.5kV / 126kV | kV |
| 額定電流 | 630 | A |
| 安裝類型 | 戶外 | - |
| 應用類型 | 中性點斷開 | - |
| 中性點隔離 | 是(適用於中性點隔離應用) | - |
| 隔離開關的組成 | 托架 + 底座 + 支柱 絕緣體 + 接點 + 接線板 | - |
| 支柱絕緣體交叉角 | 50° | 學位 |
| 傾斜托架角度 | 25° | 學位 |
| 50° 支柱絕緣體交叉點 | 是(兩個支柱絕緣體的相交角度為 50) | - |
| 25° 傾斜托架 | 有(底座固定在傾斜 25° 的支架上) | - |
| 獨特的安裝幾何 | 是 (50° 相交和 25° 傾斜支架提供獨特的安裝幾何) | - |
| 最佳電氣間隙 | 有 (確保最佳電氣間隙的設計) | - |
| 機械穩定性 | 有(確保機械穩定性的設計) | - |
| 底座上的支柱絕緣體和導電部件 | 有(支柱絕緣體和導電部分安裝在底座上) | - |
| 底座固定在傾斜托架上 | 有(底座固定在傾斜 25° 的支架上) | - |
| 帶軸連接的托架 | 有 (支架配備與操作機構連接的軸) | - |
| CS17G 手動操作機制 | 有(可配備 CS17G 手動操作機構) | - |
| CJ6 電動機構 | 有(可配備電動機械,例如 CJ6) | - |
| 遠端自動操作 | 有 (CJ6 電動機構,用於遙控自動操作) | - |
| 靈活的機構配置 | 有(CS17G 手動或 CJ6 電動機構選項) | - |
| 隔離開關的組成 | 組件 |
|---|---|
| 1 | 托架 |
| 2 | 基座 |
| 3 | 支柱絕緣器 |
| 4 | 聯絡人 |
| 5 | 接線板 |
| 安裝幾何特性 | 參數 |
|---|---|
| 支柱絕緣體交叉角 | 50° |
| 傾斜托架角度 | 25° |
| 安裝類型 | 底座固定在 25° 傾斜托架上 |
| 支柱絕緣器安裝 | 安裝在底座上的支柱絕緣體和導電部件 |
| 操作機制選項 | 類型 |
|---|---|
| 手動操作機制 | CS17G 類型 |
| 電動操作機制 | CJ6 類型 |
| 訂購說明 | 要求 |
|---|---|
| 1 | 室外隔離開關型號和規格 |
| 2 | 使用環境條件(環境溫度、海拔高度、環境污染程度) |
| 3 | 運作機制模型 |
| 4 | 備用零件、特殊工具和設備的名稱和數量(需另行訂購) |
Bepto 是中國領先的電氣絕緣公司,專注於為未來電力系統開發先進的解決方案。我們與包括國家電網、ABB、施耐德、西門子和 GE 在內的長期合作夥伴共同支持輸配電系統的安全和發展。我們的服務覆蓋超過 22 個國家的客戶。.
Bepto 專注於全球市場,並為客戶提供適合當地市場的產品:
我們堅定不移地致力於為客戶提供最先進的創新產品,Bepto 是您前進路上的堅定盟友。.