تفانينا الذي لا يتزعزع في تفانينا تجاه العملاء وتقديم أحدث الابتكارات، تقف Bepto كحليف ثابت لك في رحلتك المقبلة.
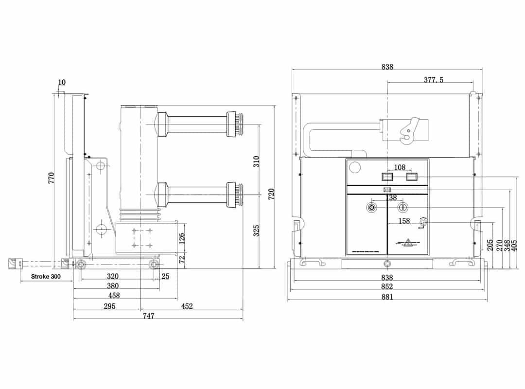
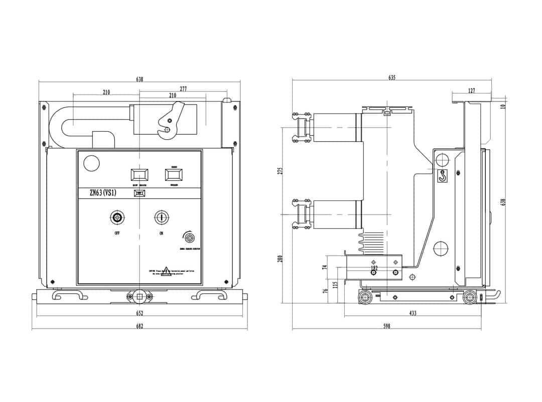
قواطع دوائر تفريغ الهواء ZN63A-12 VS1: 12 كيلو فولت/24 كيلو فولت 4000 أمبير VCB داخلي عالي الجهد، أقطاب مدمجة، مجموعة مفاتيح كهربائية KYN28A/XGN، أقطاب محكمة الغلق، عمر افتراضي E2/M2، صيانة مجانية، كسر 40 كيلو أمبير، 10000 دورة، -15 درجة مئوية إلى +40 درجة مئوية.
سلسلة قواطع الدوائر الكهربائية الفراغية المتقدمة ZN63A-12 (VS1): قاطع الدائرة الكهربائية الفراغي الداخلي عالي الجهد العالي الممتاز المصمم للتحكم وحماية المحطات الفرعية والمعدات الكهربائية، الجهد المقنن 12 كيلو فولت / 24 كيلو فولت، نظام طاقة تيار متردد ثلاثي الأطوار 50 هرتز، يتطابق مع لوحة المفاتيح الكهربائية KYN28A و XGN، مناسب للمؤسسات الصناعية / التعدين، محطات الطاقة، المحطات الفرعية، توصيل تيار مقننن 630-4000 أمبير, كسر الدائرة القصيرة 20-40 كيلو أمبير، وإغلاق الدائرة القصيرة 50-100 كيلو أمبير (الذروة)، و10000 دورة حياة ميكانيكية، و50 مرة كسر/إغلاق للدائرة القصيرة المقدرة، والدائرة الموصلة الرئيسية تعتمد أقطاب مدمجة (أقطاب محكمة الغلق) باستخدام قاطع تفريغ العلامة التجارية الدولية وأجزاء الدائرة الموصلة الرئيسية محكمة الغلق في كلها، والعمر الكهربائي E2، والعمر الميكانيكي M2.
أعمدة مدمجة وجاهزة للصيانة المجانية: تشتمل ZN63A-12 (VS1) على تقنية الأعمدة المدمجة التي تحمي القاطع من الصدمات والغبار وتأثيرات التكثيف، وتحسن بشكل كبير من موثوقية العزل والأداء الميكانيكي والكسر، وتحقق صيانة مجانية وعمر ميكانيكي/كهربائي أطول، وآلية تشغيل مدمجة مع جسم قاطع الدائرة الكهربائية تم التحقق منها عن طريق اختبارات النوع، وقدرة قوية على التكيف البيئي، وتقلل بشكل كبير من تكاليف التشغيل والصيانة، وتعمل في درجة حرارة -15 درجة مئوية إلى +40 درجة مئوية، وارتفاع ≤2000 متر، وتوفر حلًا موثوقًا لكسر الدائرة الكهربائية بالتفريغ للمحطات الفرعية والمؤسسات الصناعية/التعدين ومحطات الطاقة والعمليات المتكررة وانقطاعات الدائرة الكهربائية المتعددة.
| مواصفات القاطع الدائري التفريغي ZN63A-12 (VS1) | VS1-12 (20/25 كيلو أمبير) | VS1-12 (31.5 كيلو أمبير) | VS1-12 (40 كيلو أمبير) | VS1-24 | الوحدة |
| العلامة التجارية | أنظمة بيبتو العازلة | - | |||
| رقم الموديل | zn63a-12 (vs1-12) | VS1-24 | - | ||
| نوع المنتج | قواطع دوائر تفريغ الهواء الداخلية عالية الجهد (VCB) ذات الأعمدة المدمجة (أعمدة محكمة الغلق) لمجموعة المفاتيح الكهربائية KYN28A/XGN | - | |||
| التكنولوجيا الأساسية | أعمدة مدمجة (أعمدة محكمة الغلق) + قاطع تفريغ هوائي من ماركة عالمية + أجزاء الدائرة الموصلة الرئيسية محكمة الغلق في الكل + آلية زنبركية + عمر كهربائي E2 + عمر ميكانيكي M2 + صيانة مجانية | - | |||
| توافق مجموعة المفاتيح الكهربائية | لوحة المفاتيح الكهربائية KYN28A، لوحة المفاتيح الكهربائية XGN | - | |||
| الفولتية المقدرة | 12 | 24 | كيلو فولت | ||
| الحد الأقصى لجهد التشغيل الأقصى | 12 | 24 | كيلو فولت | ||
| التردد المقدر | 50 | هرتز | |||
| التيار المقنن | 630, 1250 | 630, 1250, 1600, 2000 | 1250, 1600, 2000, 2500, 3150, 4000 | 630, 1250, 1600, 2000, 2500 | A |
| تيار كسر الدائرة القصيرة المقدر | 20/25 | 31.5 | 40 | 20, 25, 31.5 | ك أ |
| تيار إغلاق الدائرة القصيرة المقدر (الذروة) | 50/63 | 80 | 100 | 50, 63, 80 | ك أ |
| تيار التحمل المقدر (الذروة) | 50/63 | 80 | 100 | 50, 63, 80 | ك أ |
| 4 ثوانٍ مصنفة تيار الصمود في وقت قصير | 20/25 | 31.5 | 40 | 20, 25, 31.5 | ك أ |
| مستوى العزل المقنن - جهد تحمل التردد الصناعي (1 دقيقة) | 42/48 | 65 | كيلو فولت | ||
| مستوى العزل المقدر - جهد تحمل الصدمات البرقية (الذروة) | 75/85 | 125 | كيلو فولت | ||
| تسلسل التشغيل المقدر | O-0.3 - 0.3s-CO-180s-CO | - | |||
| العمر الميكانيكي (المستوى M2) | 10000 | الدورات | |||
| العمر الكهربائي (المستوى E2) | نعم (E2 مستوى الحياة الكهربائية E2) | - | |||
| أزمنة كسر/إغلاق الدائرة القصيرة المقدرة | 50 | 20 | الأوقات | ||
| مدة الدائرة القصيرة المقدرة | 4 | s | |||
| آلية التشغيل الفولتية المقدرة | تيار متردد/تيار متردد 110، 220 | V | |||
| الجهد المقدر لتخزين طاقة المحرك | تيار متردد/تيار متردد 110، 220 | V | |||
| تصنيف قوة المحرك | 70 | W | |||
| وقت تخزين الطاقة | ≤15 | s | |||
| تبديل مسافة التلامس | >11 | مم | |||
| التجاوز (طول ضغط زنبرك التلامس) | 4±0.5 | مم | |||
| عدم تزامن كسر/إغلاق ثلاثي المراحل | <2 | ms | |||
| وقت الإغلاق وقت الإغلاق | <2 | ms | |||
| متوسط سرعة الانكسار | 0.9-1.2 | 0.9-1.7 | م/ث | ||
| متوسط سرعة الإغلاق | 0.5-0.8 | 0.6-1.0 | م/ث | ||
| وقت الكسر (أعلى جهد تشغيل) | <0.05 | s | |||
| زمن الانقطاع (أقل جهد تشغيل) | <0.08 | s | |||
| وقت الإغلاق | <0.1 | 35-70 | ق/م | ||
| مقاومة الدائرة الرئيسية | <45 | μΩ | |||
| سُمك التآكل المتراكم لسمك التلامس | 3 | مم | |||
| تيار كسر بنك المكثف الواحد | 630 | A | |||
| تيار كسر بنك المكثفات المتتابع من الخلف إلى الخلف | 400 | A | |||
| دائرتي تردد تردد الطاقة تحمل الجهد الكهربي | 2000 | V | |||
| درجة الحرارة المحيطة (القصوى) | +40 | °C | |||
| درجة الحرارة المحيطة (الحد الأدنى) | -15 | -10 | °C | ||
| الرطوبة النسبية (المتوسط اليومي) | ≤95 | % | |||
| الرطوبة النسبية (المتوسط الشهري) | ≤90 | % | |||
| ضغط البخار المشبع (المتوسط اليومي) | ≤2.2 | كيلو باسكال | |||
| ضغط البخار المشبع (المتوسط الشهري) | ≤1.8 | كيلو باسكال | |||
| الارتفاع | ≤2000 | ≤1000 | m | ||
| شدة الزلزال | ≤8 درجات | - | |||
| الظروف البيئية | لا يوجد غبار، دخان، غازات أكالة/قابلة للاشتعال، بخار، تلوث برذاذ الملح؛ لا يوجد حريق، انفجار، قذارة خطيرة، تآكل كيميائي، اهتزاز عنيف | - | |||
| أعمدة مدمجة (أعمدة صلبة محكمة الغلق) | نعم (قاطع تفريغ العلامة التجارية الدولية + أجزاء الدائرة الموصلة الرئيسية محكمة الغلق في الكل) | - | |||
| الحماية من الصدمات/الغبار/التكثيف | نعم (يحمي القاطع من تأثيرات الصدمات والغبار والتكثيف) | - | |||
| يحسن موثوقية العزل | نعم (يحسن بشكل كبير من موثوقية العزل والأداء الميكانيكي والكسر) | - | |||
| الصيانة المجانية | نعم (يحقق صيانة مجانية وعمر ميكانيكي/كهربائي أطول) | - | |||
| التصميم المتكامل | نعم (آلية التشغيل مدمجة مع جسم القواطع، تم التحقق منها عن طريق اختبارات النوع) | - | |||
| قدرة قوية على التكيف البيئي | نعم (قدرة قوية على التكيف البيئي، تقلل بشكل كبير من تكاليف التشغيل والصيانة) | - | |||
| الامتثال للمعايير | IEC62271-100، المواصفة القياسية IEC62271-100، المواصفة القياسية IEC، المواصفات القياسية الوطنية | - | |||
| المزايا الرئيسية | أعمدة مدمجة، أعمدة صلبة محكمة الغلق، مجموعة مفاتيح كهربائية KYN28A/XGN، عمر افتراضي E2/M2، صيانة مجانية، 10000 دورة، حماية من الصدمات/الغبار/التكثيف وموثوقية العزل، تصميم متكامل، قدرة قوية على التكيف البيئي | - | |||
| التطبيقات الأساسية | المحطات الفرعية، والمؤسسات الصناعية والتعدينية، ومحطات الطاقة، والتحكم في المعدات الكهربائية وحمايتها، ومعدات شبكة الكهرباء، والعمليات المتكررة، وانقطاع الدوائر الكهربائية المتعددة، وتبديل الأحمال المختلفة ذات الطبيعة المختلفة | - | |||
شركة Bepto هي شركة صينية رائدة في مجال العزل الكهربائي، تركز على تطوير حلول متقدمة لأنظمة الطاقة المستقبلية. نحن ندعم سلامة النقل والتوزيع والنمو، مع شركاء على المدى الطويل بما في ذلك State Grid وABB وشنايدر وسيمنز وجنرال إلكتريك. تصل خدماتنا إلى العملاء في أكثر من 22 دولة.
تركز Bepto على السوق العالمية وتوفر لعملائنا المنتجات المناسبة للسوق المحلية:
تفانينا الذي لا يتزعزع في تفانينا تجاه العملاء وتقديم أحدث الابتكارات، تقف Bepto كحليف ثابت لك في رحلتك المقبلة.